





VARIA 2Lh/2Rh H2O
Vezi portofoliul nostru de lucrări aici.
Program Rabla pentru Sobe este acum disponibil!
Schimbă-ți soba veche cu una nouă, mai eficientă și mai ecologică.
Află mai multe →Inovatie si Stil cu Termosemineu Varia 2Lh H₂O Spartherm
Termosemineu Varia 2Lh H₂O Spartherm exemplifica excelenta in designul si performanta sistemelor de incalzire moderne. Acest model, proiectat de renumitul producator german Spartherm, este ideal pentru cei care cauta nu doar functionalitate, ci si un element central estetic in locuinta lor.
Caracteristici Superioare ale unui Termosemineu Varia 2Lh H₂O Spartherm
Design Avansat si Specificatii Tehnice
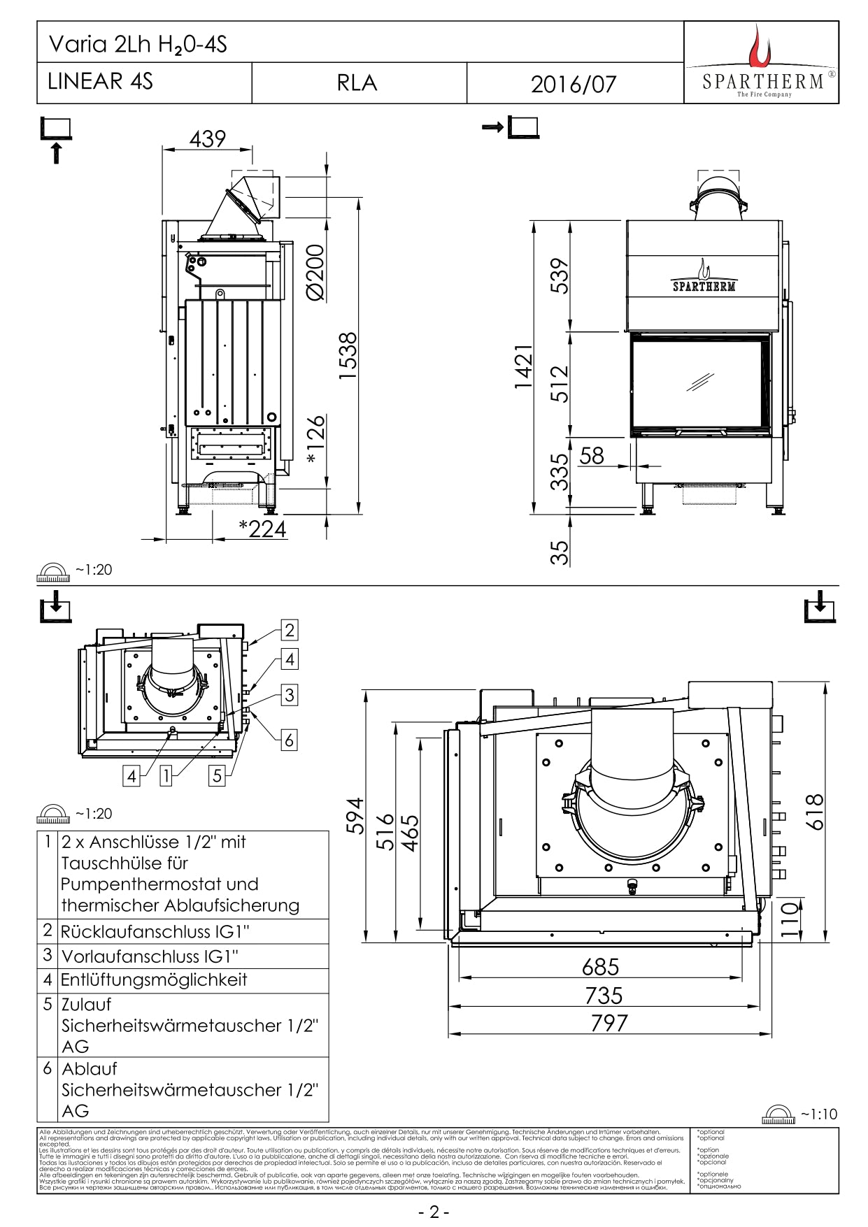
Cu o inaltime de 1421 mm, latime de 797 mm si adancime de 618 mm, Termosemineul Varia 2Lh H₂O Spartherm este conceput sa se integreze perfect in orice tip de decor interior. Designul sau cu doua laturi pe stanga maximizeaza expunerea vizuala si distributia caldurii, oferind o vizibilitate impresionanta a flacarilor si o atmosfera calduroasa si primitoare. Eficienta de 80% este un testament al angajamentului Spartherm fata de durabilitate si reducerea consumului energetic.
Performanta de Incalzire Exceptionala
Termosemineu Varia 2Lh H₂O Spartherm dispune de o putere nominala de 10.4 kW si poate atinge o putere maxima impresionanta, asigurand caldura abundenta pentru spatii mari. Cu o putere nominala in apa de 5.9 kW, acest model este capabil sa furnizeze eficient si apa calda necesara pentru intreaga locuinta, integrandu-se armonios cu sistemele de incalzire centralizata.
Durabilitate si Integrare Simpla a unui Termosemineu Varia 2Lh H₂O Spartherm in Locuinta
Constructie Durabila si Materiale de Calitate
Fabricat in Germania, Termosemineul Varia 2Lh H₂O Spartherm este construit din materiale de cea mai inalta calitate, garantand longevitate si fiabilitate. Structura robusta si finisajele atent executate sunt gata sa reziste in fata testului timpului, cu o garantie extinsa de 5 ani care subliniaza angajamentul producatorului pentru excelenta.
Pentru a asigura performanta maxima si conformitate cu toate normele de siguranta, instalarea Termosemineului Varia 2Lh H₂O Spartherm trebuie efectuata de profesionisti. Modelul este proiectat pentru a fi compatibil cu o varietate de sisteme de incalzire, facandu-l versatil si ideal pentru o gama larga de aplicatii rezidentiale, fie ca este vorba de case noi sau de renovari ale celor existente
Optand pentru Termosemineul Varia 2Lh H₂O Spartherm, vei beneficia de un echilibru perfect intre performanta, eficienta si estetica. Acest termosemineu nu numai ca va transforma orice spatiu intr-un punct de atractie remarcabil, dar va si imbunatati confortul termic al locuintei tale, demonstrand ca tehnologia moderna poate merge mana in mana cu designul sofisticat.

Ce spun clienții noștri
Maria P.
Recomand cu drag.
Apelez la echipa Șeminee Ardeal pentru serviciile lor de coșerit și pentru verificarea anuală a șemineului. Sunt foarte multumit de serviciile și de promptitudinea lor. Recomand cu încredere! Noi cu siguranță vom continua să apelăm la ei pentru fiecare întrebare, verificare și reparație.
Andrei M.
Profesioniști și atat.
Deținem o pizzerie în care avem un cuptor pe lemne. Ni se recomandă o curățare a cuptorului și a coșului de fum la un interval de maxim 6 luni, atât din motive de siguranță, cât și din motive de igienă alimentară. Pentru fiecare verificare și curățare, apelăm cu încredere la echipa Șeminee Ardeal.






