







SPARTHERM Focar samota fata dubla Mini S – FDh
Vezi portofoliul nostru de lucrări aici.
Program Rabla pentru Sobe este acum disponibil!
Schimbă-ți soba veche cu una nouă, mai eficientă și mai ecologică.
Află mai multe →Focar Mini S-FDh Spartherm – Eleganta si Eficienta intr-un Design Tip Tunel Avansat
Focar Mini S-FDh Spartherm aduce o experienta inedita in lumea semineelor, fiind un model de tip tunel, oferind vizualizare completa a focului de la doua perspective opuse. Un veritabil ecran estetic si functional, acest focar transforma traditionalul intr-o experienta contemporana.
Ca toate produsele Spartherm, acest semineu reflecta standardul ridicat de calitate germana. Fabricat cu maiestrie, fiecare detaliu este atent finisat pentru a aduce in casele utilizatorilor o piesa de rezistenta durabila si estetica. Cu deschidere verticala si laturi tip tunel, pe ambele parti ale semineului. Focar Mini S-FDh Spartherm ofera o viziune captivanta a focului din oricare parte a incaperii. Este mai mult decat un simplu semineu; este un element de design care redefineste estetica incaperii dvs.
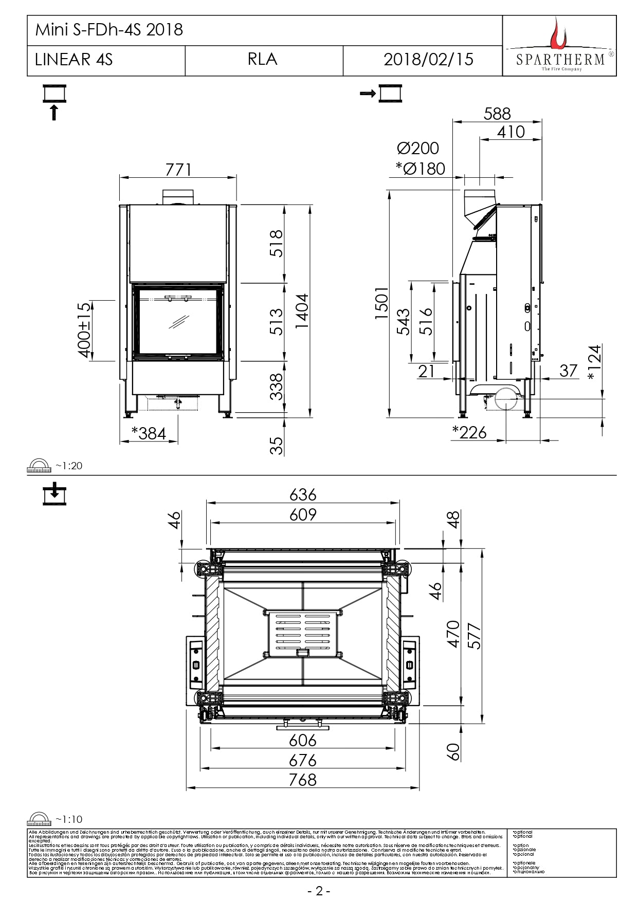
Cu o clasa de eficienta A si o eficienta de 80%, acest semineu asigura o distributie uniforma a caldurii si o ardere eficienta a lemnului. Astfel, nu doar va incalzeste casa, ci o face cu un impact energetic minim. Cu dimensiuni compacte (inaltime 1565 mm, latime 746 mm, adancime 583 mm), Focarul Mini S-FDh Spartherm se integreaza perfect in orice spatiu. Acesta nu doar va imbunatateste vizual livingul, ci si ofera o sursa eficienta de incalzire.
Maiestria producatorilor germani au reusit sa imbine perfect estetica cu functionalitatea in acest design tip tunel. Deschiderea verticala va permite sa reglati usor arderea si sa controlati temperatura, oferind astfel o experienta personalizata. Cu o garantie extinsa de 5 ani, Focar Mini S-FDh Spartherm nu este doar o investitie in confortul prezent, ci si in siguranta si satisfactia pe termen lung.
Focar Mini S-FDh Spartherm: Eleganta si Eficienta in Inovatia Germana a Semineelor pe Lemne
Focar Mini S-FDh Spartherm este o alegere inovatoare pentru cei care doresc sa aduca o nota moderna si eficienta in locuinta lor. Cu un design tip tunel captivant si performante energetice de top, acest semineu este gata sa redefineasca modul in care va bucurati de caldura si frumusetea focului in propria casa. Focar Mini S-FDh Spartherm nu este doar un simplu aparat de incalzire, ci o capodopera a ingineriei germane. Proiectat si fabricat in Germania, acest semineu reprezinta un standard in ceea ce priveste calitatea si durabilitatea.
Cu o eficienta energetica de 80%, Focar Mini S-FDh Spartherm aduce beneficii economice si ecologice. Performanta sa remarcabila nu doar incalzeste eficient incaperea, ci si optimizeaza arderea lemnului, oferind un impact minim asupra mediului. Focarul Mini S-FDh Spartherm impresioneaza nu doar prin aspectul sau elegant, ci si prin functionalitatile avansate.
Controlul precis al temperaturii va ofera posibilitatea de a ajusta nivelul de caldura in functie de preferintele dvs., transformand fiecare seara intr-o experienta personalizata. Siguranta este o prioritate si acest lucru este reflectat in designul Focarului Mini S-FDh Spartherm. Cu caracteristici de siguranta incorporate, precum sistemul silentios de inchidere a usii, acest semineu asigura o experienta relaxanta fara griji. Cu un design ingenios, acest semineu nu obstructioneaza campul vizual, oferind o panorama neintrerupta a focului in timp ce va relaxati in livingul dvs.
Focar Mini S-FDh Spartherm nu aduce doar caldura in casa, ci si o experienta calmanta unica. Atmosfera relaxanta pe care o creeaza flacarile dansante si lumina difuza transforma fiecare seara intr-un moment de relaxare si bucurie. Focar Mini S-FDh Spartherm este mai mult decat un simplu sistem de incalzire. Este o investitie in confortul, eficienta energetica si estetica casei dvs. Cu tehnologie germana de varf si un design modern, acest semineu redefineste standardele in materie de seminee pe lemne. Alegeti inovatia, alegeti calitatea germana cu Focar Mini S-FDh Spartherm.
Detalii Tehnice:
Producător Spartherm
Țară de origine Germania
Înălțime 1565 mm
Lățime 746 mm
Adâncime 583 mm
Putere (kW) la 6kW
Clasă de eficientă A
Eficienţă 80%
Diametrul coșului de fum 200 mm
Max. putere (kW) la 7.8 kW
Garanție 5 ani

Ce spun clienții noștri
Maria P.
Recomand cu drag.
Apelez la echipa Șeminee Ardeal pentru serviciile lor de coșerit și pentru verificarea anuală a șemineului. Sunt foarte multumit de serviciile și de promptitudinea lor. Recomand cu încredere! Noi cu siguranță vom continua să apelăm la ei pentru fiecare întrebare, verificare și reparație.
Andrei M.
Profesioniști și atat.
Deținem o pizzerie în care avem un cuptor pe lemne. Ni se recomandă o curățare a cuptorului și a coșului de fum la un interval de maxim 6 luni, atât din motive de siguranță, cât și din motive de igienă alimentară. Pentru fiecare verificare și curățare, apelăm cu încredere la echipa Șeminee Ardeal.




