

















SPARTHERM Focar Premium A-U 70h
Vezi portofoliul nostru de lucrări aici.
Program Rabla pentru Sobe este acum disponibil!
Schimbă-ți soba veche cu una nouă, mai eficientă și mai ecologică.
Află mai multe →Focar Premium A-U-70h Spartherm: Eleganta si Performanta Superioara in Semineul Dvs. de Lemne
Un focar ramane o alegere deosebita pentru incalzirea unei locuinte din mai multe motive. In primul rand, ofera o atmosfera reconfortanta si placuta, creand o ambianta calda si relaxanta in casa. Eficienta sa energetica este remarcabila, deoarece lemnele sunt o sursa de energie regenerabila si accesibila. Capacitatea semineului de a furniza caldura constanta si de lunga durata este un aspect apreciat, mai ales in perioadele reci. De asemenea, exista o senzatie de conexiune cu traditia si natura atunci cand folosesti un semineu pe lemne, ceea ce poate adauga un plus de satisfactie si autenticitate experientei de incalzire a casei.
Focar Premium A-U-70h Spartherm reprezinta ultima aditie in gama Premium a Spartherm, evidentiindu-se printr-o forma in U inovatoare si atragatoare. Aceasta forma distinctiva adauga un plus de eleganta si stil, oferind o priveliste impresionanta in orice incapere.
Gama Premium Spartherm aduce o serie de avantaje remarcabile. Oferind o vedere libera a focului, reducand efectul de oglinda si mentinand sticla curata, acest focar asigura o ardere eficienta si o imagine captivanta a patului de jar. Deschiderea patentata a usilor faciliteaza curatarea sticlei, iar rama masiva de 6mm consolideaza calitatea constructiei la Focar Premium A-U-70h Spartherm.
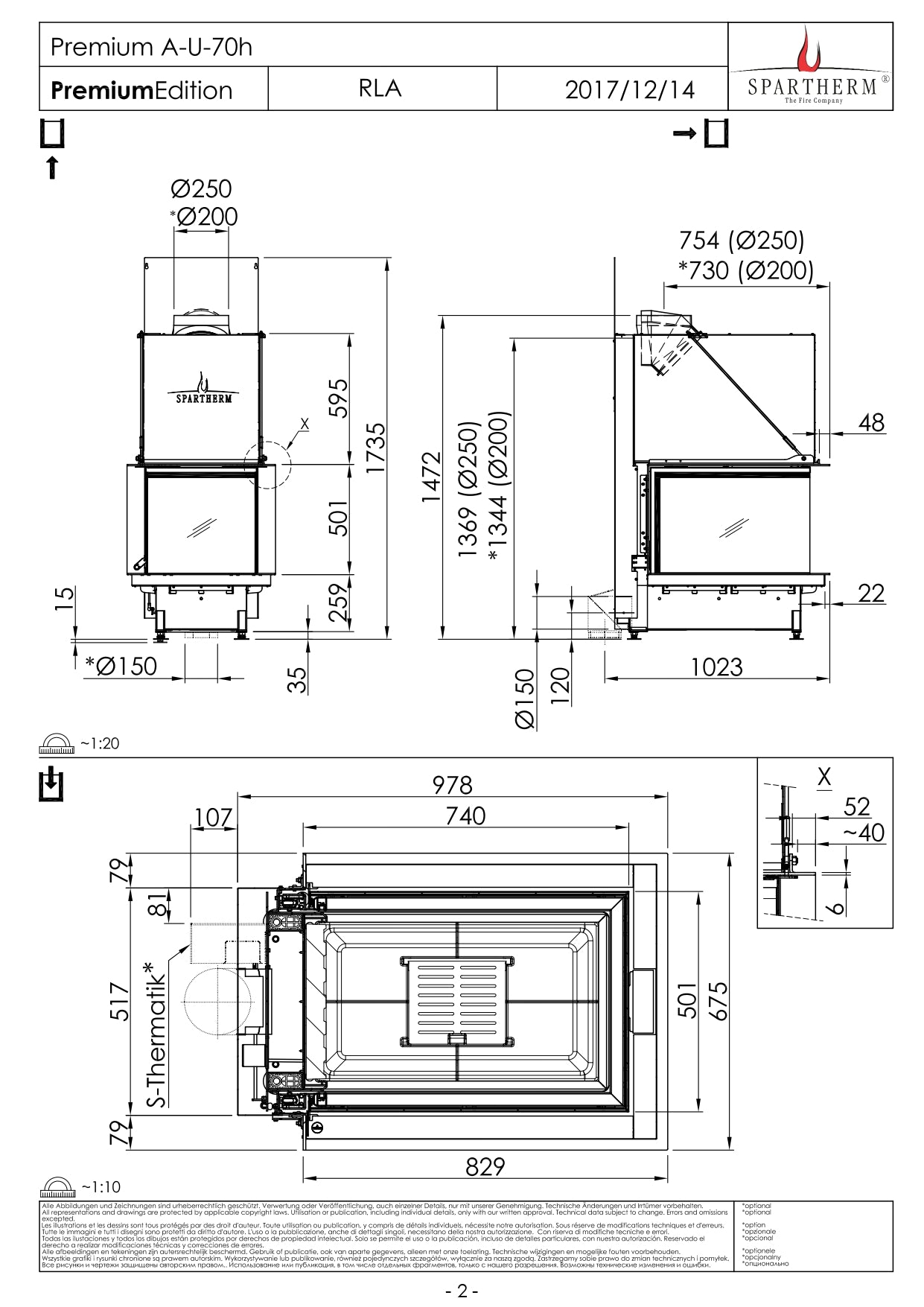
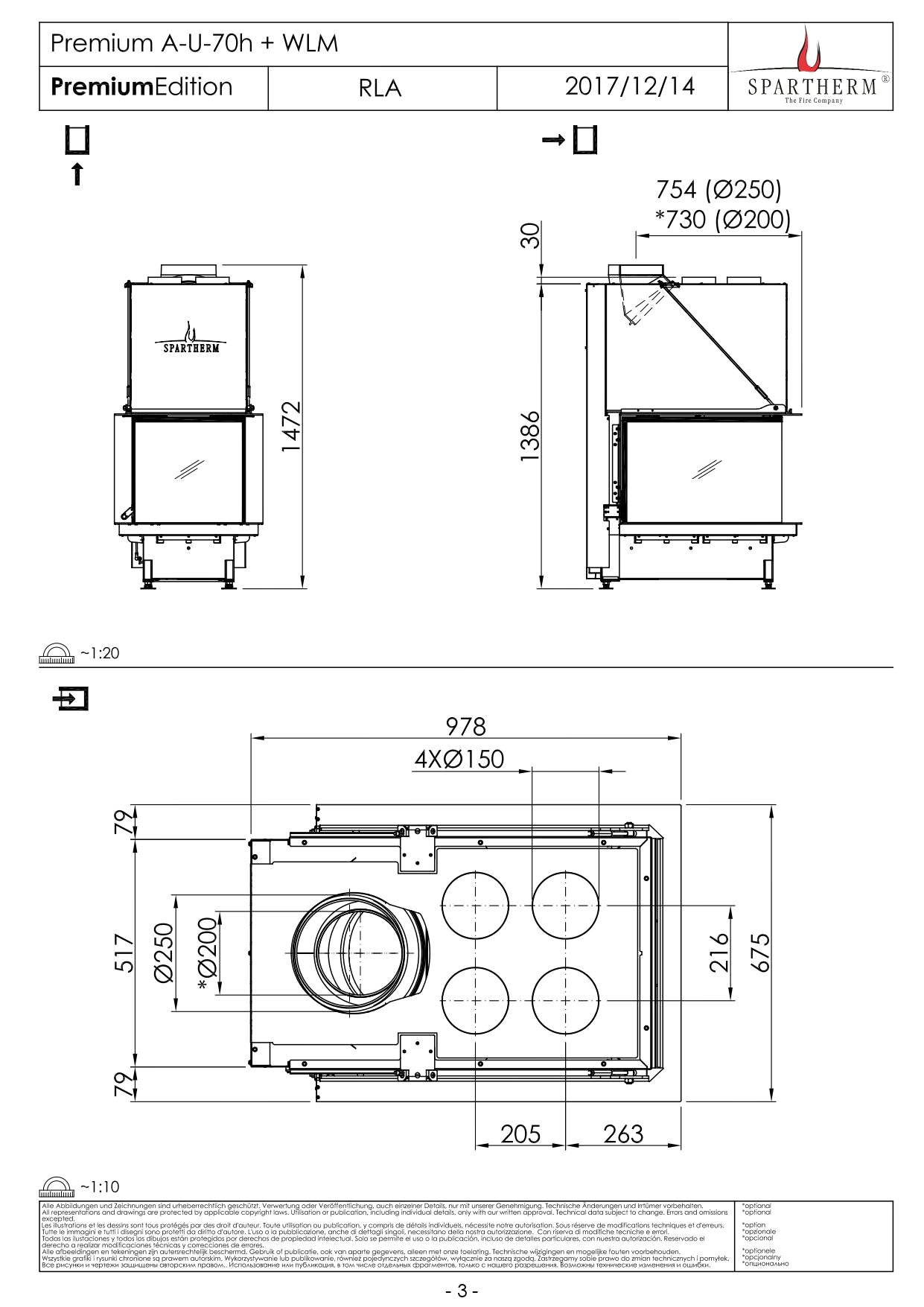
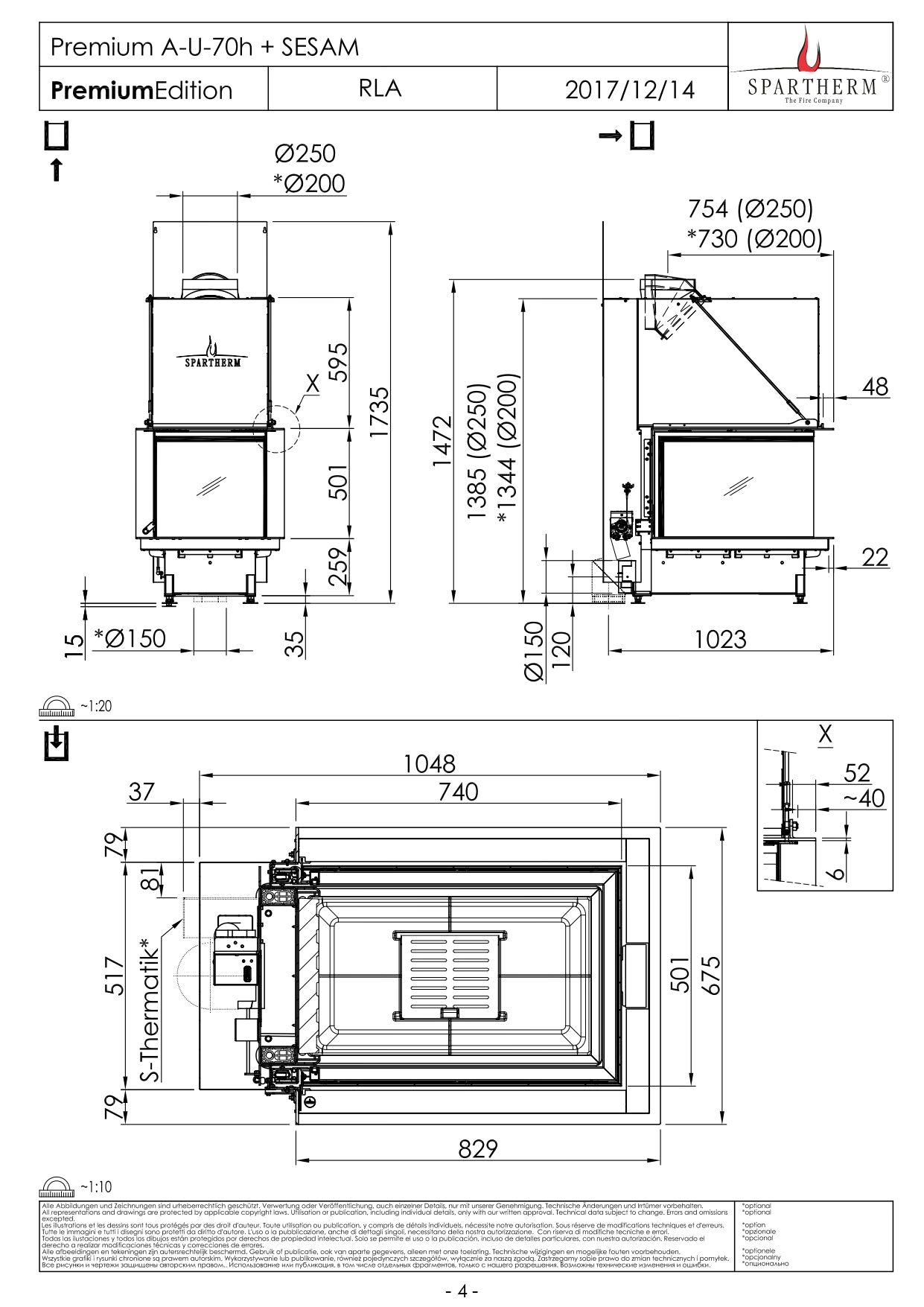
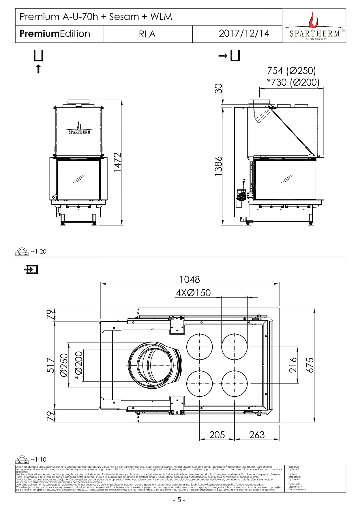
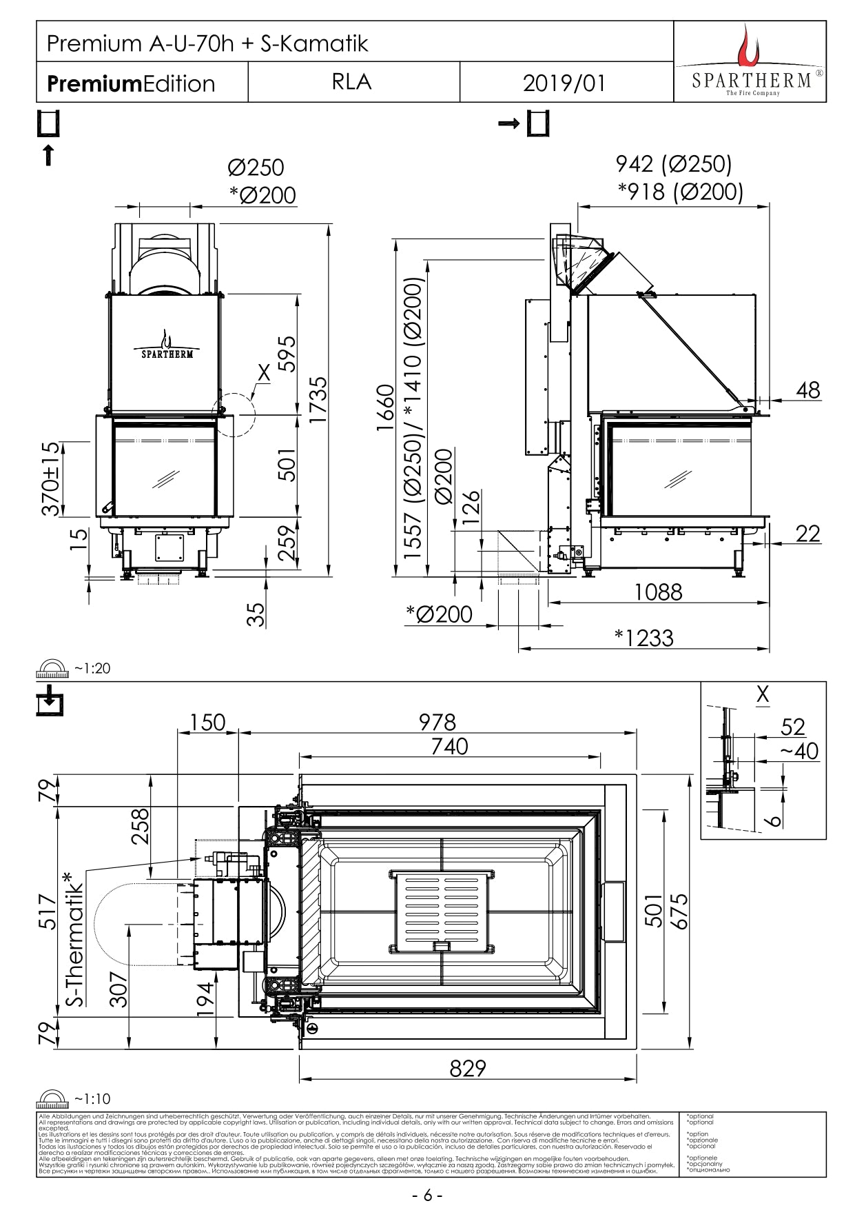
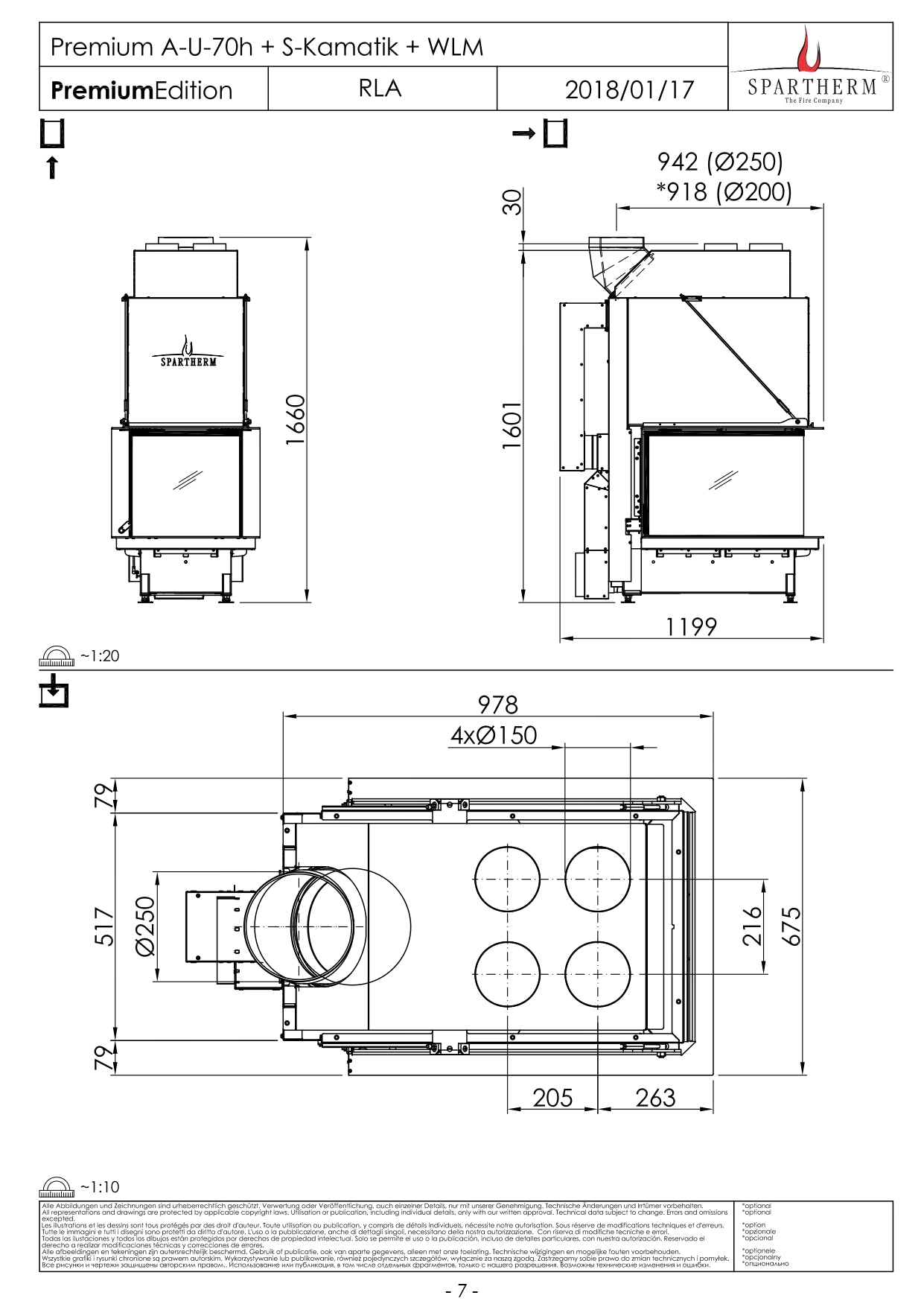
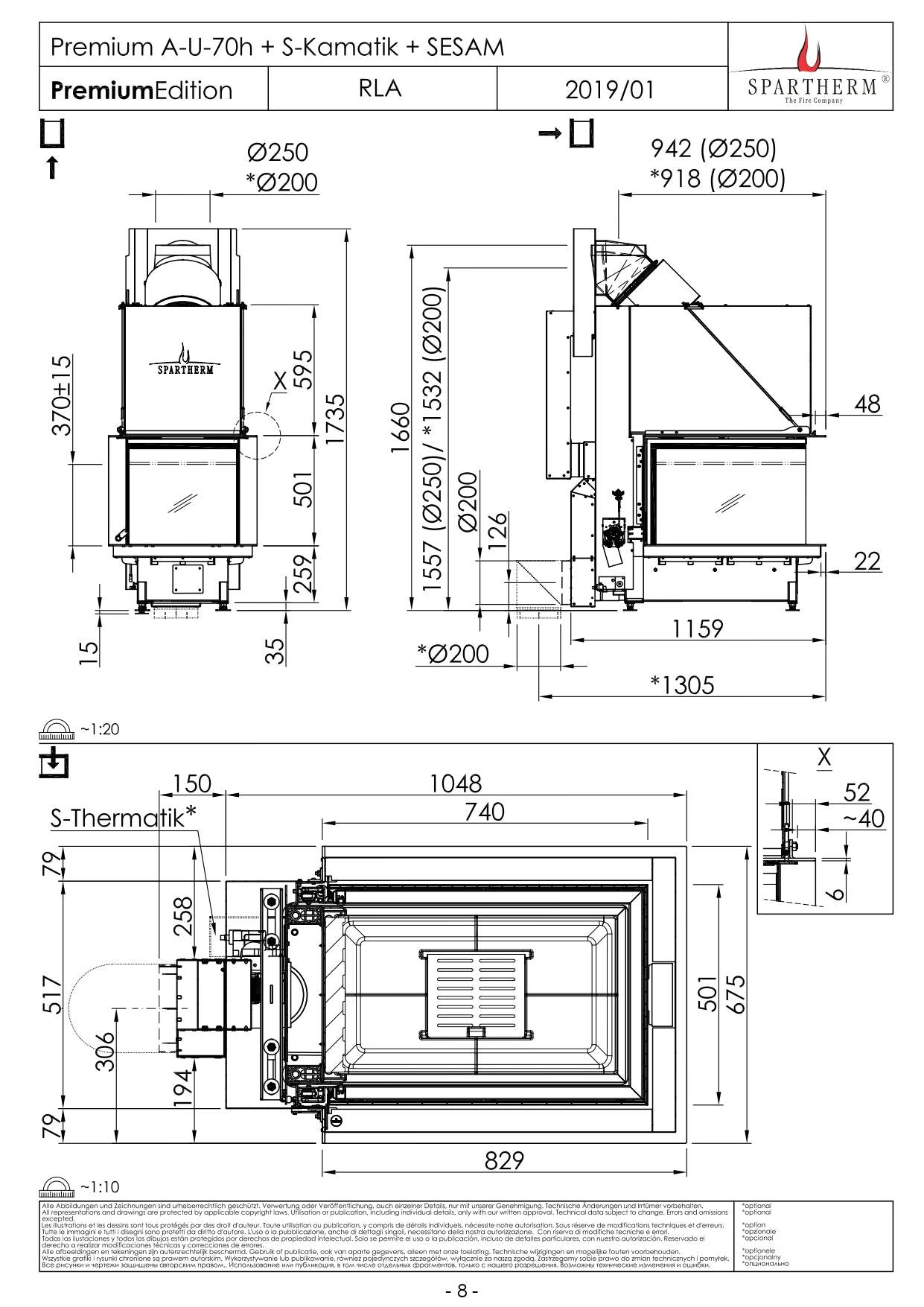
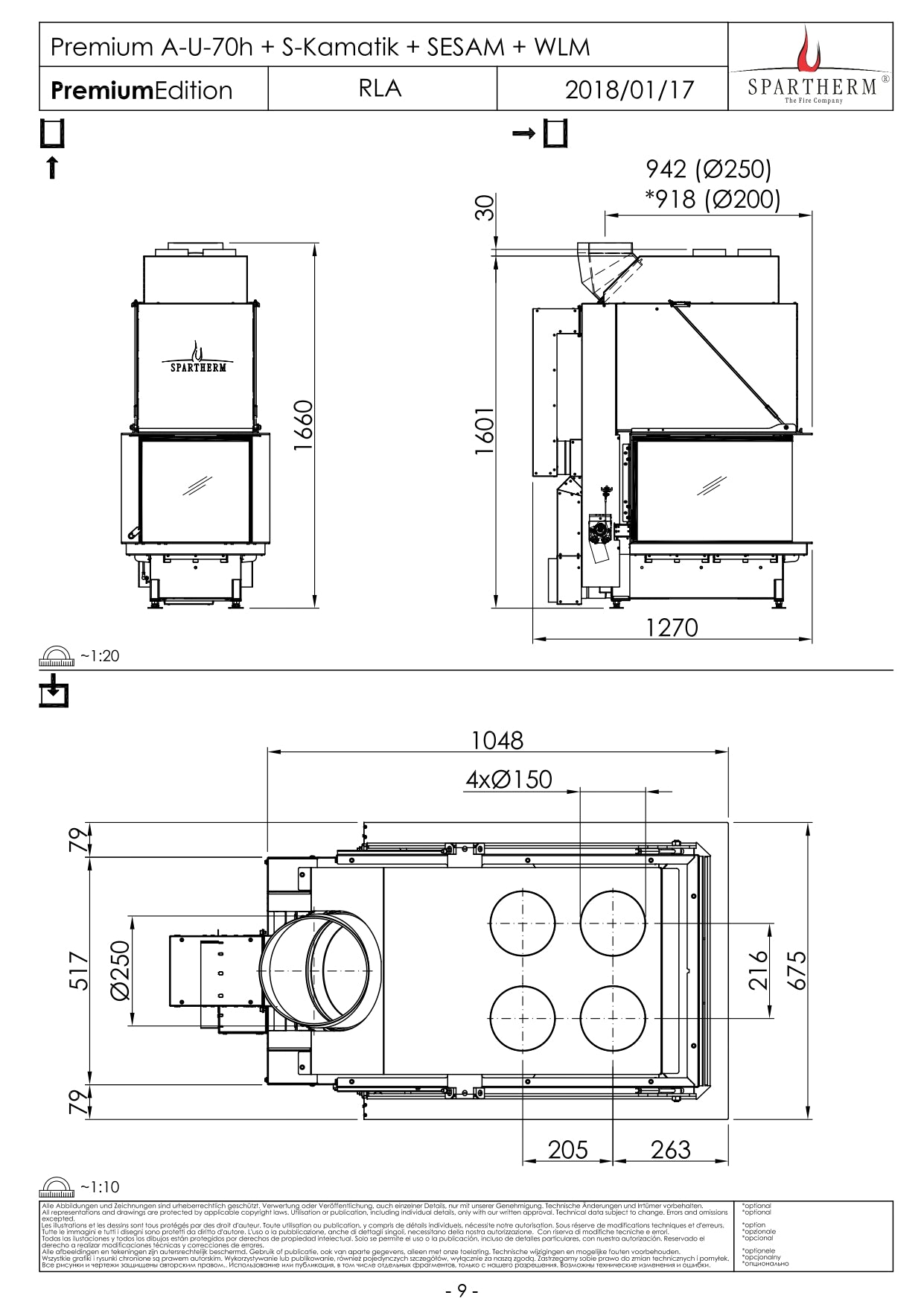
Focarul Spartherm Premium A-U-70h impresioneaza prin designul sau elegant si performanta sa fiabila. Cu dimensiunile de 1735 mm in inaltime, 829 mm in latime si 1023 mm in adancime, acesta ofera o putere nominala de 11.4 kW, asigurand o eficienta energetica de 80%. Clasa de eficienta A subliniaza angajamentul sau pentru performante superioare si consum redus de combustibil.
Fabricat in Germania, Focar Premium A-U-70h Spartherm transmite incredere si fiabilitate. Cu o garantie extinsa de 5 ani, acesta aduce liniste si asigurare in privinta investitiei facute. Focar Premium A-U-70h Spartherm este alegerea ideala pentru cei care cauta un focar de inalta calitate, eficienta si eleganta in acelasi timp. Cu o forma inovatoare, performante fiabile si design exceptional, acest focar adauga rafinament si o atmosfera placuta oricarui interior.
Alegerea Perfecta pentru Un Ambient Confortabil si Sigur cu Focar Premium A-U-70h Spartherm
Focar Premium A-U-70h Spartherm redefineste conceptul de eleganta si durabilitate in materie de focare pe lemne. Fabricat in Germania, acesta reprezinta un amestec perfect intre inovatie, calitate si functionalitate. Un avantaj major al acestui focar il reprezinta controlul precis al temperaturii, oferind o eficienta energetica remarcabila. Cu tehnologia sa avansata, Focar Premium A-U-70h Spartherm aduce confort termic in incapere, reducand in acelasi timp consumul de combustibil.
Cu o estetica moderna si eleganta, acest focar nu numai ca imbunatateste aspectul livingului, dar si asigura o experienta vizuala placuta, neobstructionand vizibilitatea flacarilor. Fiind construit conform celor mai inalte standarde de siguranta, acesta ofera liniste si confort in utilizare. Focarul Spartherm Premium A-U-70h nu este doar o sursa de caldura, ci si o modalitate de a aduce o atmosfera calma si relaxanta in livingul dvs. Cu o flacara placuta si controlata, acesta contribuie la crearea unei atmosfere reconfortante.
Spartherm Premium A-U-70h este un partener de incredere pentru orice locuinta, aducand un plus de eleganta, eficienta si confort termic. Cu un design modern, functionalitate avansata si siguranta garantata, acesta transforma orice seara intr-o experienta relaxanta si placuta in fata focului.
Specificatii tehnice
- Producator: SPARTHERM
- Clasa de eficienta energetica:
- Putere termică nominală (închis) kW: 11,4
- Interval de putere termică kW: 8 – 14,8
- Eficiență%: > 80
- Model: incorporat
- Vedere la foc: pe 3 fețe
- Forma sticlei: orizontala
- Combustibil: bușteni
- Sistem de ardere: Combustie închisă, dependent de aerul din încăpere
- Design sticla: sticla premium, din 3 parti
- Design usi: usa glisanta
- Înălțimea tocului ușii mm: 501
- Latime toc usi mm: 742 x 501 x 742
- Latime totala mm: 675
- Adâncime totală mm: 978
- Diametru mufă de evacuare mm: 250 (opțional 200)
- Greutate kg: 357
- Material: Corp din otel special de 3,0 mm
- Căptușeală focarului: șamotă rezistentă la căldură, culoare fildeș (opțional antracit)
- Examene: BImSCHV. Etapa a 2-a, 15a B-VG
- Funcționare posibilă cu tipul A1: nr
- Funcționare posibilă cu tipul A: da
- Spălarea geamurilor: da
- Secțiuni transversale libere necesare aer de alimentare / aer evacuat cm²: 700 fiecare
Specificatii Produs:
Focar Premium A-U 70h
Putere: 8 – 14.8 kw
Carena de convectie = Da
Dimensiunea usii: 742/501/742 X 501 mm
Eficienta medie = 80%
Eficienta maxima = 90%
Placare interioara: termota
Functie usa: deschide verticala
Evacuare focar = 200/250 mm
Priza aer proaspat : Da
Temperatura gaze evacuare: 311 grade C
Emisii Co: 0.1 %
Greutate cca: 357 kg
Garantie 5 ani.

Ce spun clienții noștri
Maria P.
Recomand cu drag.
Apelez la echipa Șeminee Ardeal pentru serviciile lor de coșerit și pentru verificarea anuală a șemineului. Sunt foarte multumit de serviciile și de promptitudinea lor. Recomand cu încredere! Noi cu siguranță vom continua să apelăm la ei pentru fiecare întrebare, verificare și reparație.
Andrei M.
Profesioniști și atat.
Deținem o pizzerie în care avem un cuptor pe lemne. Ni se recomandă o curățare a cuptorului și a coșului de fum la un interval de maxim 6 luni, atât din motive de siguranță, cât și din motive de igienă alimentară. Pentru fiecare verificare și curățare, apelăm cu încredere la echipa Șeminee Ardeal.




