


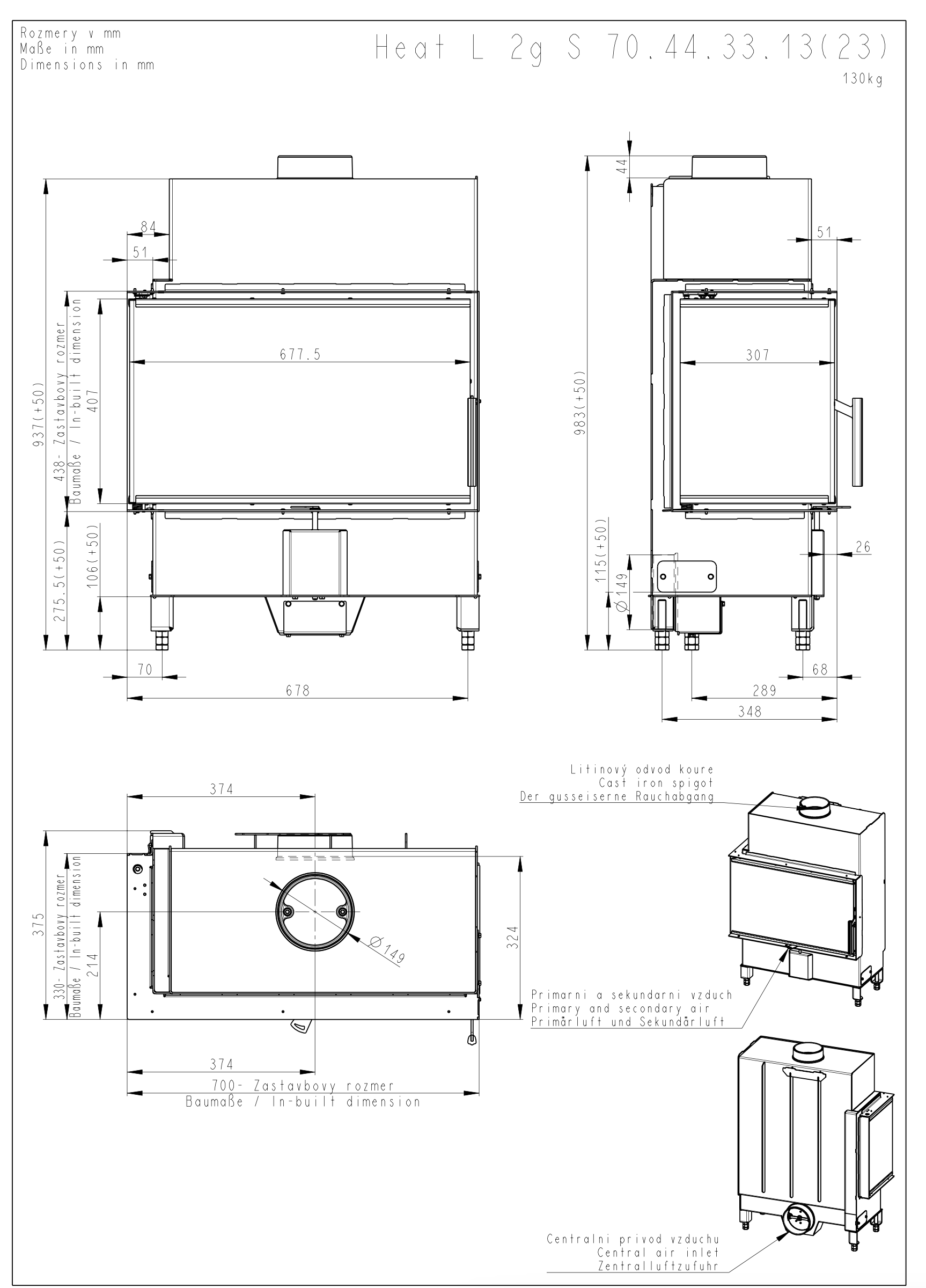
HEAT L 2G S 70.44.33
Vezi portofoliul nostru de lucrări aici.
Program Rabla pentru Sobe este acum disponibil!
Schimbă-ți soba veche cu una nouă, mai eficientă și mai ecologică.
Află mai multe →Focar de șemineu slim seria HEAT L 2G S 70.44.33.23 cu deschidere laterală pe balamale.
Rama ușii este realizată dintr-un profil special laminat rigid.
Geamul șemineului include un imprimeu de design pe contur, care are rolul de a masca ramele ușii.
Camera de ardere este căptușită cu șamotă, iar pe vatră focarul este dotat cu grătar din fontă și tavă de cenușă.
Șamota din camera de ardere este de cea mai bună calitate. Aceasta se caracterizează prin stabilitate ridicată a materialului, ardere mai bună, proprietăți de acumulare și dinamică îmbunătățită a arderii.
De asemenea șamota din focarele Romotop este cu autocurățare. În sensul că tot ce trebuie să faci e să-l folosești corect, conform indicațiilor noastre, pentru a te bucura de cea mai sănătoasă căldură și admirând spectacolul focului care arde curat timp îndelungat.
Sistemul inovator DOUBLE SPIN cu dublu deflector crește eficiența și reduce impactul asupra mediului.
Focarul este dotat cu sistemul EAI (admisie aer extern) ce asigură funcționarea șemineului independent de aerul ambiental.
Perdeaua de aer secundară spală geamul de sus în jos pentru a preveni murdărirea sticlei. Intrarea de aer primară și secundară este reglată de un singur element de control.
Seturile de acumulare laterale și superioare MAMMOTH pot fi achiziționate separat pentru focarul de șemineu, care pot prelungi perioada de radiere a căldurii cu până la 12 ore.
CLASA ENERGETICĂA+
RANDAMENT86,69%
PUTERE NOMINALĂ 7 KW
PUTERE UTILĂ 3,5 - 9,1 KW
CONSUMUL DE COMBUSTIBIL 2 KG/HTIP
DESCHIDERE STANDARD, PE BALAMALE
TIP STICLA COLȚ STÂNGA,
COMBUSTIBIL LEMN USCAT DE FOIOASE SAU BRICHETE DE RUMEGUȘ
GREUTATE 130KG
MATERIAL INTERIOR ȘAMOTĂ CREM DIN ARGILĂ ARSĂ
DIAMETRU RACORD EVACUARE GAZE 150 MM
DIAMETRU RACORD ADMISIE AER125 MM
TEMPERATURA MEDIE EVACUARE GAZE198°C
TIRAJUL NECESAR 12PA

Ce spun clienții noștri
Maria P.
Recomand cu drag.
Apelez la echipa Șeminee Ardeal pentru serviciile lor de coșerit și pentru verificarea anuală a șemineului. Sunt foarte multumit de serviciile și de promptitudinea lor. Recomand cu încredere! Noi cu siguranță vom continua să apelăm la ei pentru fiecare întrebare, verificare și reparație.
Andrei M.
Profesioniști și atat.
Deținem o pizzerie în care avem un cuptor pe lemne. Ni se recomandă o curățare a cuptorului și a coșului de fum la un interval de maxim 6 luni, atât din motive de siguranță, cât și din motive de igienă alimentară. Pentru fiecare verificare și curățare, apelăm cu încredere la echipa Șeminee Ardeal.




