


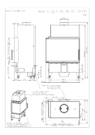
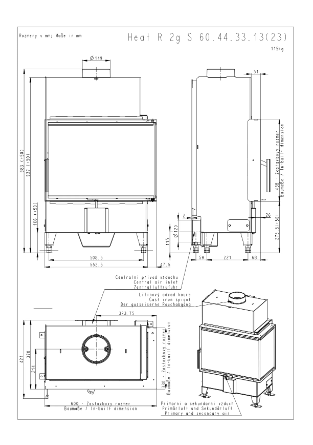
Focar lemne sticla pe colt stangadreapta – 60.44.33
Vezi portofoliul nostru de lucrări aici.
Program Rabla pentru Sobe este acum disponibil!
Schimbă-ți soba veche cu una nouă, mai eficientă și mai ecologică.
Află mai multe →- sistem nou de evacuare a gazelor arse DOUBLE SPIN
• potrivit pentru casele cu consum redus de energie
• racord intrare aer ardere
• gratar din fonta
• optional cenusar
• interior captusit cu samota speciala
• picioare ajustabile pe inaltime
• geam cu print negru
• cadrul usii realizat din profil special rigid
• rame aditionale sunt disponibile la comanda
• Inaltime 983 mm
• Latime 600 mm
• Adancime 370 mm
• Greutate 115 kg
• Putere 2.9 - 7.4 kW
• Diametru cos de fum 150 mm
• Diametru racord intrare aer ardere 120 mm
• Tiraj minim 12 Pa
• Randament 85 %
• Consum mediu lemne 1,6 kg/h
• Clasa energetica A+

Ce spun clienții noștri
Maria P.
Recomand cu drag.
Apelez la echipa Șeminee Ardeal pentru serviciile lor de coșerit și pentru verificarea anuală a șemineului. Sunt foarte multumit de serviciile și de promptitudinea lor. Recomand cu încredere! Noi cu siguranță vom continua să apelăm la ei pentru fiecare întrebare, verificare și reparație.
Andrei M.
Profesioniști și atat.
Deținem o pizzerie în care avem un cuptor pe lemne. Ni se recomandă o curățare a cuptorului și a coșului de fum la un interval de maxim 6 luni, atât din motive de siguranță, cât și din motive de igienă alimentară. Pentru fiecare verificare și curățare, apelăm cu încredere la echipa Șeminee Ardeal.




