


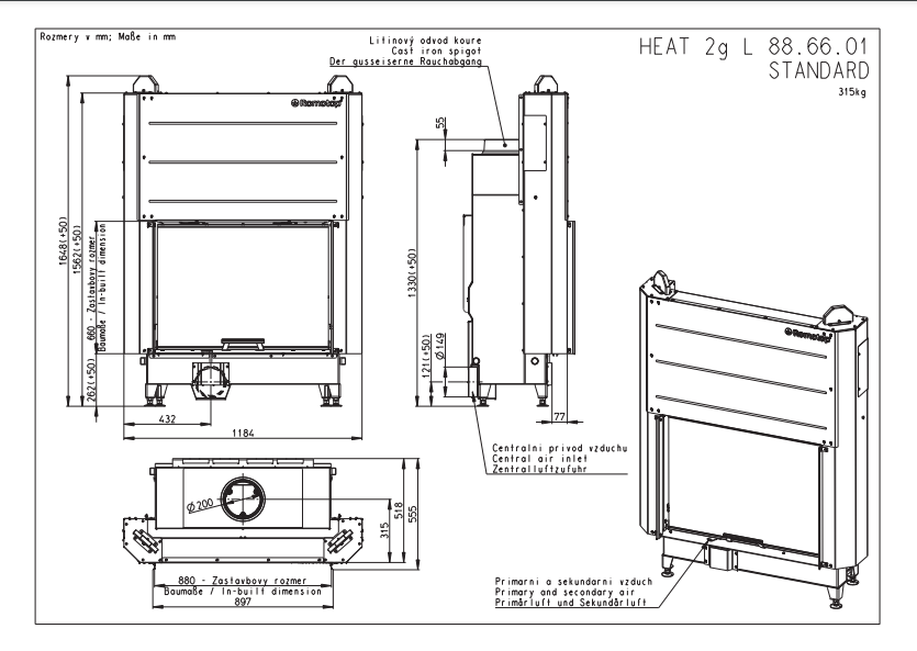
Focar lemne H3LJ01 – 88.66
Vezi portofoliul nostru de lucrări aici.
Program Rabla pentru Sobe este acum disponibil!
Schimbă-ți soba veche cu una nouă, mai eficientă și mai ecologică.
Află mai multe →- focar semineu cu geam mare
• usa culisanta silentioasa datorita noului sistem de role – silentios si usor de folosit
• sistem nou de evacuare a gazelor arse DOUBLE SPIN
• fara gratar si cenusar – optiuni disponibile la cerere
• interior captusit cu samota speciala
• geam mare cu print negru
• aer tertiar (post-combustie)
• un singur element de control pentru aerul primar si secundar
• racord intrare aer ardere
Parametri Tehnici
• Inaltime 1653 mm
• Latime 1184 mm
• Adancime 558 mm
• Inaltime usa 626 mm
• Latime usa 851 mm
• Greutate 310 kg
• Putere termica 5.5 - 14.2 kW
• Diametru cos de fum 200 mm
• Diametru racord intrare aer ardere 150 mm
• Tiraj minim 12 Pa
• Randament 81.2 %
• Consum mediu lemne 3,0 kg/h
• Clasa energetica A+

Ce spun clienții noștri
Maria P.
Recomand cu drag.
Apelez la echipa Șeminee Ardeal pentru serviciile lor de coșerit și pentru verificarea anuală a șemineului. Sunt foarte multumit de serviciile și de promptitudinea lor. Recomand cu încredere! Noi cu siguranță vom continua să apelăm la ei pentru fiecare întrebare, verificare și reparație.
Andrei M.
Profesioniști și atat.
Deținem o pizzerie în care avem un cuptor pe lemne. Ni se recomandă o curățare a cuptorului și a coșului de fum la un interval de maxim 6 luni, atât din motive de siguranță, cât și din motive de igienă alimentară. Pentru fiecare verificare și curățare, apelăm cu încredere la echipa Șeminee Ardeal.




