




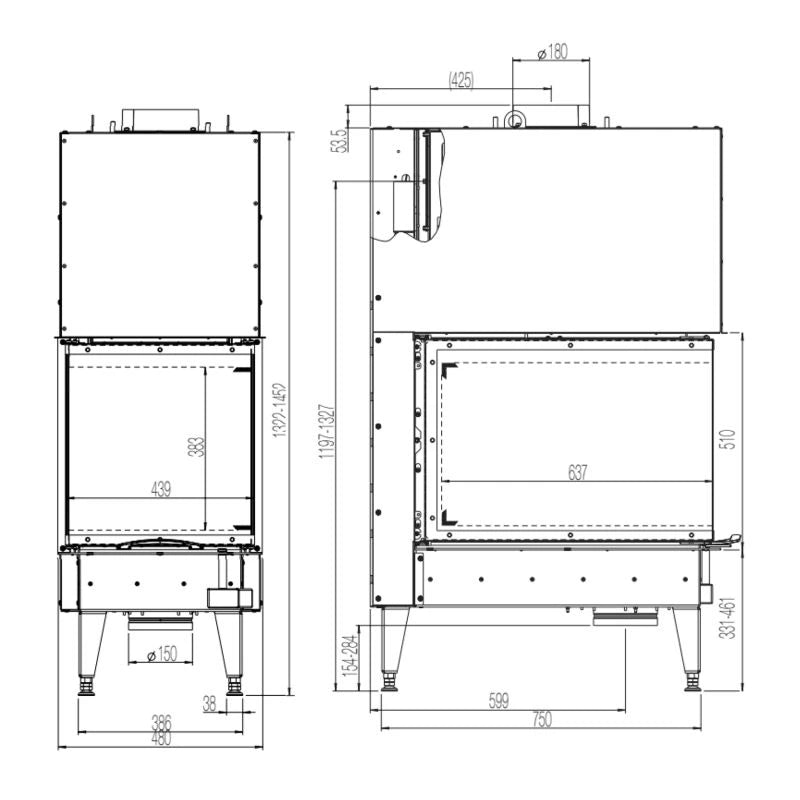
Focar Austroflamm 48X72X51 S3
Vezi portofoliul nostru de lucrări aici.
Program Rabla pentru Sobe este acum disponibil!
Schimbă-ți soba veche cu una nouă, mai eficientă și mai ecologică.
Află mai multe →Focar 48X72X51 S3
Focar 48X72X51 S3 are o putere nominală de 15 kW și un randament de 80%, asigurând o căldură plăcută și confortabilă.
Inovația în învelirea camerei de ardere, numită Keramott, este responsabilă pentru o izolare optimă și o distribuție uniformă a căldurii în spațiul de locuit. Puteți alege între o învelire albă sau neagră, determinându-vă favorit în meniul de variante. Culorile diferite nu afectează calitatea încălzirii, ci doar modul în care se prezintă flăcările.
Caracteristici Focar 48X72X51 S3
✓ Fereastră vizuală pe trei laturi
Bucurați-vă de foc din diferite unghiuri: fereastra vizuală a modelului 48x72x51 S3 2.0 se extinde pe trei laturi, astfel încât puteți observa flăcările atât din față, cât și din lateral.
✓ Ardere independentă de aerul din încăpere
Funcționarea independentă de aerul din încăpere conform DIBt (Institutul German pentru Tehnica Construcțiilor) este posibilă. Acest lucru înseamnă că sistemul de șemineu poate funcționa în mod independent de aerul din încăpere, fără necesitatea unor echipamente suplimentare de siguranță. Aceasta este esențială, mai ales pentru casele bine izolate, dotate cu sisteme de ventilație controlată.
✓ Ușă glisantă practică
Ușa glisantă standard este ușor de utilizat. Pentru a o deschide, ridicați mânerul și mutați-l în sus. Pentru a închide ușa, coborâți din nou panoul.
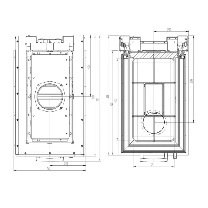
Cameră de ardere Focar 48X72X51 S3
Îmbrăcămintea camerelor de ardere ale tuturor kaminelor Austroflamm este realizată din Keramott, care garantează un raport excelent între izolația termică și conductivitatea termică. Acest lucru permite atingerea rapidă a temperaturilor ridicate, încălzind eficient spațiul de locuit și asigurând o ardere curată.
✓ Culoare diferită a camerei de ardere
Camera de ardere este standardizată cu un înveliș deschis, alb. Totuși, sunt disponibile și opțiuni cu pereți interiori de culoare închisă, neagră. Calitatea materialului special Keramott rămâne aceeași, singura diferență fiind culoarea – alegeți preferatul dvs. din meniul de variante.
✓ Control modern al arderii
Cu această tehnologie avansată de control al arderii, vă puteți relaxa și bucura de căldură, în timp ce sistemul de șemineu se ocupă de restul. Reglează automat aerul, iar controlul poate fi efectuat și printr-o aplicație pe smartphone.
✓ Regulator de aer pentru ardere
Cu ajutorul regulatorului de aer pentru ardere de la 48x72x51 S3 2.0, puteți ajusta setările la nivelurile mic/minim (-), mediu (l) și mare/maxim (+) – pentru o adaptare fără probleme conform preferințelor dvs. pentru o încălzire optimă.
| Brand |
Austroflamm |
|---|---|
| Diametru |
180 |
| Eficienta |
80% |
| Greutate(kg) |
241 |
| Laturi | |
| Putere termică nominală kW |
15 |
| Tip de deschidere |
Deschidere verticala |

Ce spun clienții noștri
Maria P.
Recomand cu drag.
Apelez la echipa Șeminee Ardeal pentru serviciile lor de coșerit și pentru verificarea anuală a șemineului. Sunt foarte multumit de serviciile și de promptitudinea lor. Recomand cu încredere! Noi cu siguranță vom continua să apelăm la ei pentru fiecare întrebare, verificare și reparație.
Andrei M.
Profesioniști și atat.
Deținem o pizzerie în care avem un cuptor pe lemne. Ni se recomandă o curățare a cuptorului și a coșului de fum la un interval de maxim 6 luni, atât din motive de siguranță, cât și din motive de igienă alimentară. Pentru fiecare verificare și curățare, apelăm cu încredere la echipa Șeminee Ardeal.




