



ENERGY 75
Vezi portofoliul nostru de lucrări aici.
Program Rabla pentru Sobe este acum disponibil!
Schimbă-ți soba veche cu una nouă, mai eficientă și mai ecologică.
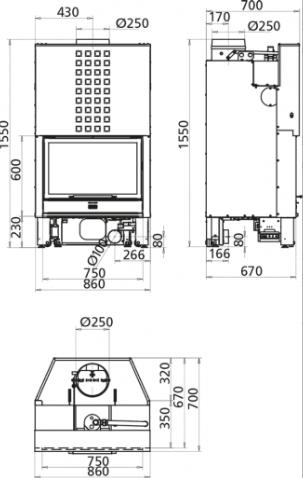
Află mai multe →ENERGY este un termosemineu centrala ideal pentru realizarea unu sistem de incalzire cu calorifere, ventiloconvectoare, instalatii de incalzire in pardoseala, boilere, puffere de acumulare, echipat cu kit hidraulic pentru racordarea in instalatie.
Realizat din otel si tabla cu o grosime generoasa, este dotat cu un grilaj din fonta pe partea de jos a focarului, pentru a garanta durabilitatea odata cu trecerea timpului. Peretii camerei de ardere din otel refractar asigura un randament ridicat si creeaza un chenar estetic excelent focarului.
Materiale:
- Otel refractar de inalta calitate cu o compozitie ridicata de carbon pentru o rezistenta ridicata la temperaturi inalte
- Captusit la interior cu samota, cu densitate mare, si rezistenta termica de pana la 1000grC. Rezistenta mecanica mare, datorita procesului de uscare urmat de cel de ardere.
- sticla ceramica speciala care rezista fara probleme la temperaturi foarte ridicate
Mod de instalare:
- Se instaleaza in circuit inchis si necesita obligatoriu: - presiune maxima de lucru de 2 bar. - presiune maxima de incarcare la rece: 1-1.2 bar. - 2x supape de presiune instalate de max. 2,5 bar pe focar. - 2x aerisitoare pe focar. - supapa termica de 97 grade pe serpentina de racire - serpentina de racire se monteaza obligatoriu - vas de expansiune min. 10% din volumul de apa din instalatie. - vana de amestec (cu trei cai) sau bypass.
Extrase:
- Clapeta de tiraj pentru un consum scazut de lemne si penru a impedica suprasolicitarea focarului.
- Optional focarul poate fi racordat la aerul din exterior
- Prevazut cu tevi, in conul focarului, pentru recuperarea suplimentara a caldurii din gazele de evacuare.
- Cenusar pentru o curatare facila.
- Picioare reglabile pentru ajustare, pozitionare si fixare optima.
- Deflector pentru extinderea traseului fumului si imbunatatirea schimbului termic
- Dotat cu serpentina de siguranta, pentru racirea focarului in cazul supraincalzirii.
Utilizare:
Termoseminee gama Italiana, direct echipate si doar racordate la calorifere sau un puffer pentru incalzire in pardoseala. Model cu putere mare , samota la interior pentru ardere curata si recuperare de caldura. Echipat cu pompa de apa, vas de expansiune si kit de siguranta.
Recomandari:
- Primi 5 metri se recomanda sa nu fie din PPR sau material compozit.
- Puffer de acumulare, pentru un randament mai bun (se dimensioneaza individual dupa marimea locuintei)
- Racordarea tur/retur se face pe diagonala.
- Mentinerea diametrului de racordare de pe focar pana la primul distribuitor.
- Controler electronic pentru admisia de aer si pompe
- A nu se testa la presiuni mai mari de 2 bar.

Ce spun clienții noștri
Maria P.
Recomand cu drag.
Apelez la echipa Șeminee Ardeal pentru serviciile lor de coșerit și pentru verificarea anuală a șemineului. Sunt foarte multumit de serviciile și de promptitudinea lor. Recomand cu încredere! Noi cu siguranță vom continua să apelăm la ei pentru fiecare întrebare, verificare și reparație.
Andrei M.
Profesioniști și atat.
Deținem o pizzerie în care avem un cuptor pe lemne. Ni se recomandă o curățare a cuptorului și a coșului de fum la un interval de maxim 6 luni, atât din motive de siguranță, cât și din motive de igienă alimentară. Pentru fiecare verificare și curățare, apelăm cu încredere la echipa Șeminee Ardeal.





